CASA IPÊ
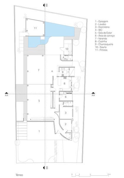
O arquiteto idealizou esta casa em frente a um campo de golfe, no ponto alto do condomínio, na cidade de Ribeirão Preto, interior do estado. A residência traz inovações formais inusitadas e peças de bom design em projetos que contemplam o máximo aproveitamento da luz natural e a integração com o paisagismo. São soluções como essas que acabaram por levar o conforto térmico, sem abrir mão da funcionalidade e da praticidade. O arquiteto faz uso ousado e sem preconceitos em relação as cores e materiais, ganhando protagonismo no contexto em que o projeto está assentado.
Considerando o clima quente da região, a ventilação natural foi privilegiada graças a aberturas inusitadas em todos os lados, o que garante máximo conforto à residência marcada por volumes, texturas materiais, cores e transparências. A integração entre a sala de estar e a varanda faz o papel ao facilitar uma maior circulação de ar, trazendo conforto para o ambiente como um todo.
Juntamente à uma série de outras escolhas irreverentes dois detalhes marcam a fachada: o volume vermelho, que abriga o lavabo no térreo e parte do banho casal superior e o grande caixilho de madeira criado pelo arquiteto que tem várias posições e situações de aberturas.
Ribeirão Preto, SP, 2015
Fotos: Wagner SIlveira
.jpg)


.jpg)
.jpg)
.jpg)

.jpg)







