CASA TORINO
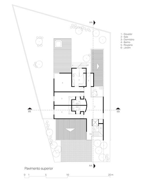
Volumes, geometria, texturas, cores e luz natural, participam da composição deste sobrado. O terreno irregular com pequeno declive e o programa de necessidades que atendesse o cliente foram o ponto de partida para se criar a “casa design”, como o proprietário a batizou. Estruturas e painéis em concreto aparente em balanço se unem à caixa metálica com vidros coloridos para compor o visual ao mesmo tempo harmônico e diferenciado. Acessos em
mosaico de pedras, piso ecológicos e uma iluminação cênica completam a proposta. Ambientes integrados e livres de alvenaria formam grandes aberturas em vidro que se comunicam com a varanda e o jardim, compondo a sala de estar e refeição. Também na sala de estar, as mesas laterais em acrílico e madeira, criadas pelo arquiteto e a designer Laura Garcia, ganharam destaque. Visto da área de lazer, o volume preto em forma de cubo que abriga o banho da suíte principal tem aberturas em vidro temperado. A janela panorâmica de canto metálica permite várias aberturas e favorece a ventilação. Sob a estrutura em pilotis, ficam a varanda e o espaço gourmet. A escada metálica contribui para uma circulação opcional da área de lazer ao segundo piso. Na ala íntima do piso superior, estruturas em concreto aparente fazem contraponto à parede em textura rústica na cor branca. O piso em porcelanato forma a base neutra para a composição com o mobiliário.
Ribeirão Preto, SP, 2016
Fotos: Studio Papaya
â









.jpg)
.jpg)
.jpg)
.jpg)